 
			 
				Proponiamo in vendita un monolocale situato all'interno di un complesso immobiliare di recente realizzazione che si distingue per le rifiniture raffinate e l'attenzione ai dettagli.
Immerso in una zona residenziale tranquilla e circondata da ampi spazi verdi offre una posizione comoda per accedere facilmente ai principali imbocchi autostradali e raggiungere a piedi la fermata della stazione a circa 1 Km.
Questo moderno edificio è progettato con le tecnologie più avanzate, raggiungendo la classe energetica A1, garantendo un'abitazione contemporanea a basso impatto ambientale con un eccezionale isolamento acustico e termico.
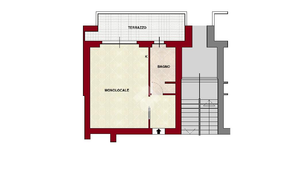
L'immobile ha una superficie di circa 45 mq ben organizzato nel suo interno tale da assicurare il massimo comfort con un soppalco a vista che aggiunge un tocco di originalità e funzionalità offrendo uno spazio aggiuntivo da sfruttare in base alle proprie esigenze.
Composto da un ingresso con disimpegno attrezzato, che conduce alla zona giorno, caratterizzata da un ampio e luminoso ambiente open-space con cucina a vista e accesso diretto al terrazzo, ideale per godere di luce naturale e momenti di relax all'aria aperta. Completa la soluzione un bagno finestrato con doccia e la cantina.
L'esposizione è rivolta ad ovest e la posizione all'ultimo piano garantisce una visuale aperta e libera, oltre a una piacevole luminosità.
COMPLETA DI ARREDO rappresenta la soluzione ideale sia come prima abitazione che come investimento.
L'appartamento è dotato di un impianto centralizzato di energia termica e frigorifera, che utilizza una pompa di calore aerotermica per garantire riscaldamento, produzione di acqua calda sanitaria e climatizzazione estiva. Il sistema di riscaldamento a pannelli radianti a pavimento assicura un comfort ideale in ogni stagione, mentre i deumidificatori completano il controllo dell'umidità, garantendo un ambiente perfetto durante l'estate. Tapparelle automatizzate, infissi in PVC, geotermico, pannelli solari e fotovoltaici.
 Immobile valutato con T·Valuta
Immobile valutato con T·Valuta
								Ti interessa visionare l'immobile?